
Chesa Panorama - coming soon - work in progress
Ab Frühling 2026:
- Drei 3.5 Zimmer- und vier 4.5 Zimmer-Wohnungen in einem kernsanierten Mehrfamilienhaus
- Wohnungsgrösse zwischen 80 – 139 m2 BGF
Alpiner Wohnkomfort auf höchstem Niveau – Exklusive Kernsanierung in Bever
In einzigartiger, sonniger Lage im idyllischen Bever entsteht ein zeitgemässes und architektonisch ansprechendes Mehrfamilienhaus mit 7 exklusiven Eigentumswohnungen zwischen 3.5 bis 4.5-Zimmer Wohnungen. Dieses Neubauprojekt vereint modernen Wohnkomfort, nachhaltige Bauweise und eine atemberaubende Aussicht auf den Bernina, Piz da Staz und auf Muottas Muragl– für all jene, die Wert auf Qualität, Lebensstil und eine nachhaltige Lebensweise legen.
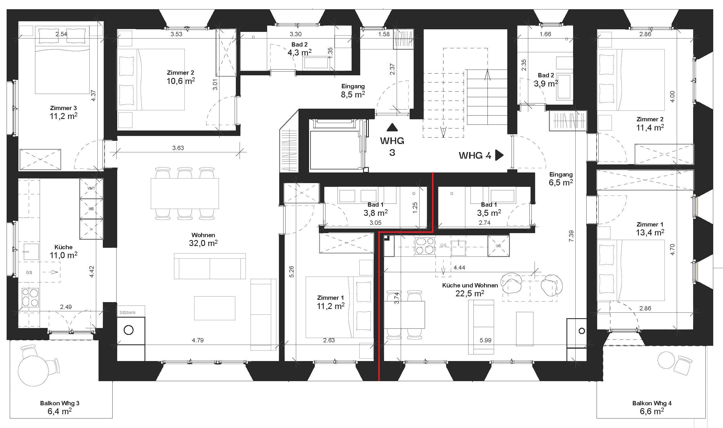
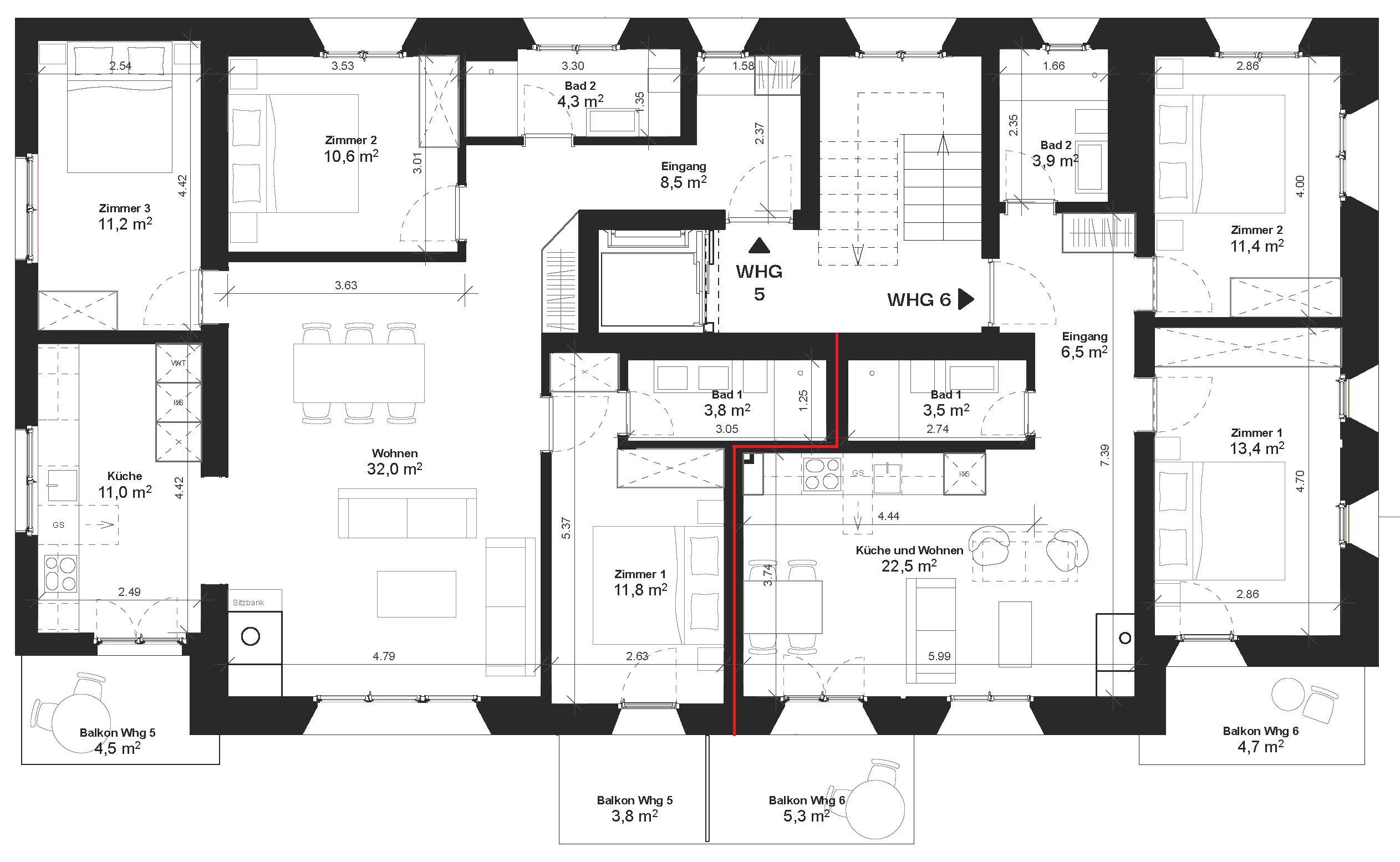
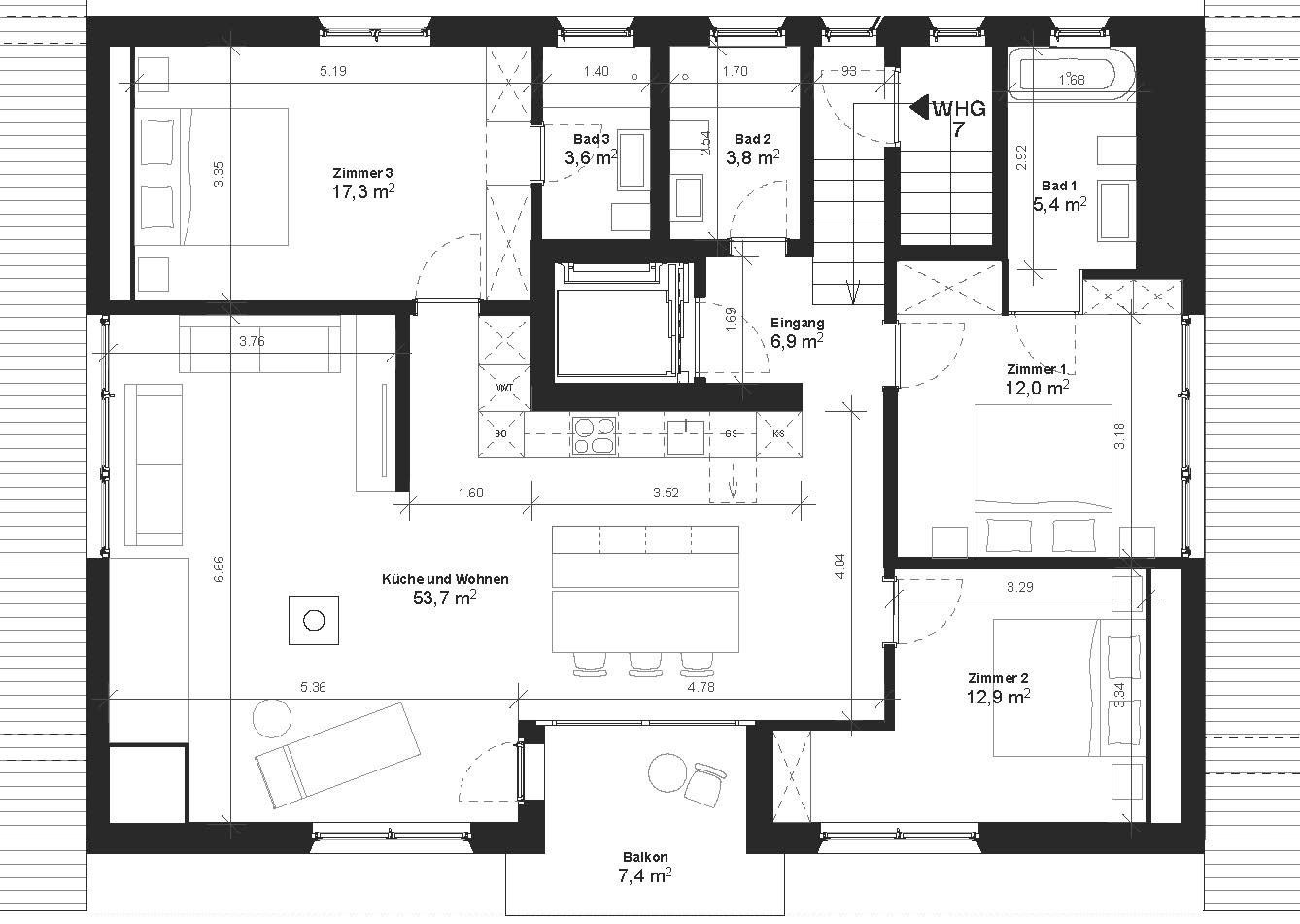
Wohnungsvielfalt und klare Raumkonzepte Das Haus umfasst insgesamt sieben grosszügige Zweitwohnungen. Die Vielfalt der Grundrisse orientiert sich an zeitgemässen Wohnbedürfnissen: Jede Einheit überzeugt durch ihre klare und durchdachte Raumaufteilung, offene Wohn- und Essbereiche sowie gut dimensionierte Schlafzimmer und flexible Nutzungsmöglichkeiten.
Licht und Weite Die Wohnungen sind nach Südosten oder Südwesten ausgerichtet und profitieren dadurch von vielen Sonnenstunden. Grosszügige Glasfronten fluten die Räume mit natürlichem Tageslicht. Das harmonische Zusammenspiel aus Licht, Raum und spektakulärer Aussicht schafft ein einzigartiges Ambiente – ideal, um den Alltag hinter sich zu lassen und zur Ruhe zu kommen.
Hochwertige Ausstattung und exklusives Ambiente Das Interieur spiegelt höchste Ansprüche an Material und Verarbeitung wider: rustikale und robuste 30 cm-breite Eichenholzböden, moderne Küchen mit Top-Geräten, stilvolle Badezimmerausstattung sowie individuelle Gestaltungsmöglichkeiten garantieren ein einzigartiges Wohnerlebnis.
Highlights Es gibt einen kleinen allgemeinen Wellnessbereich mit Sauna, Nasszelle und einen kleinen Ruheraum direkt neben dem Hauseingang. Ein Personenaufzug verbindet alle Ebenen barrierefrei und sorgt für maximale Bequemlichkeit.
Nachhaltigkeit und zukunftsweisende Energielösungen Ein zentrales Anliegen dieses Projekts ist der verantwortungsvolle Umgang mit Ressourcen. Das nachhaltige Energiekonzept kombiniert eine leistungsstarke Wärmepumpe, Erdsonden und eine eigene Photovoltaikanlage. Dies sichert eine effiziente, umweltfreundliche Energieversorgung und ermöglicht komfortables Wohnen mit minimalem ökologischen Fussabdruck. Die mit dem Haus verbundene Tiefgarage bietet zudem sichere Stellplätze mit Elektroladevorbereitung und komfortablen Zugang zu den Wohnungen – auch im Winter ein echtes Plus. Im Veloraum steht gibt es genügend Steckdosen um Ihre E-Bikes aufzuladen.
Wohnen, wo Natur und Privatsphäre zu Hause sind Bever ist ein hübsches Dorf mit vielen Original Engadinerhäusern, intakter Natur und dank der Bever Lodge bietet Bever tolle Gastronomie und Ausgangsmöglichkeiten. Das beschauliche und authentische Bever bietet ein modernes Lebensgefühl für Ruhesuchende die die kurze Distanz nach St. Moritz mit all seinen Möglichkeiten schätzen.
Das stilvolle Mehrfamilienhaus bietet Privatheit, Sicherheit und ein aussergewöhnliches Wohlfühlklima für Ruhesuchende, Outdoor-Enthusiasten und Familien gleichermassen.
Erleben Sie ein neues Wohngefühl im Herzen des Engadins – luxuriös, nachhaltig und individuell. Dieses exklusive Mehrfamilienhaus in Bever ist weit mehr als ein nachhaltiges Umbauprojekt: Es ist ein Zuhause für Menschen, die das Besondere suchen, die Verbindung aus Natur und Komfort schätzen und höchste Ansprüche an Qualität und Privatsphäre stellen.
| Objektart | Mehrfamilienhaus |
|---|---|
| Wohnungen |
drei 3.5 Zimmer- und vier 4.5 Zi-Wohnungen |
| Wohnungsgrössen | 80 - 139 m2 |
|
Zustand |
wird gegenwärtig kernsaniert |
| Bezug | ab Frühling 2026 |








