
Chesa Panorama
Bever, 3.5-Zimmer-Wohnung im 1. OG (81 m2 BGF)
CHF 4'000.--/Mt. in Jahresmiete inkl. Tiefgaragenplatz und Nebenkosten
Alpiner Wohnkomfort auf höchstem Niveau – Exklusive Kernsanierung in Bever
An einzigartiger, sonniger Lage im idyllischen Bever ist ein zeitgemässes und architektonisch ansprechendes Mehrfamilienhaus mit 7 exklusiven 3.5 bis 4.5-Zimmer Wohnungen entstanden. Dieses Umbauprojekt vereint modernen Wohnkomfort, nachhaltige Bauweise und eine atembe-raubende Aussicht auf den Bernina, Piz da Staz und auf Muottas Muragl – für all jene, die Wert auf Qualität, Lebensstil und eine nachhaltige Lebensweise legen.
Wohnungsvielfalt und klare Raumkonzepte
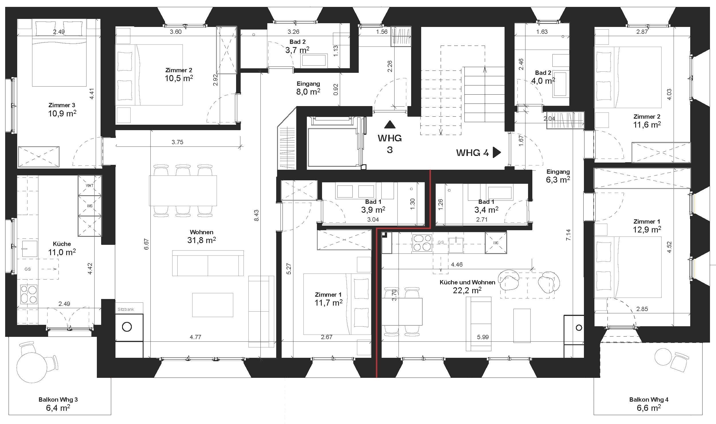
Das Haus umfasst insgesamt sieben grosszügige Zweitwohnungen. Die Grundrisse orientieren sich an zeitgemässen Wohnbedürfnissen. Jede Einheit überzeugt durch ihre klare und durchdachte Raumaufteilung, offene Wohn- und Essbereiche sowie gut dimensionierte Schlafzimmer und flexible Nutzungsmöglichkeiten.
Licht und Weite
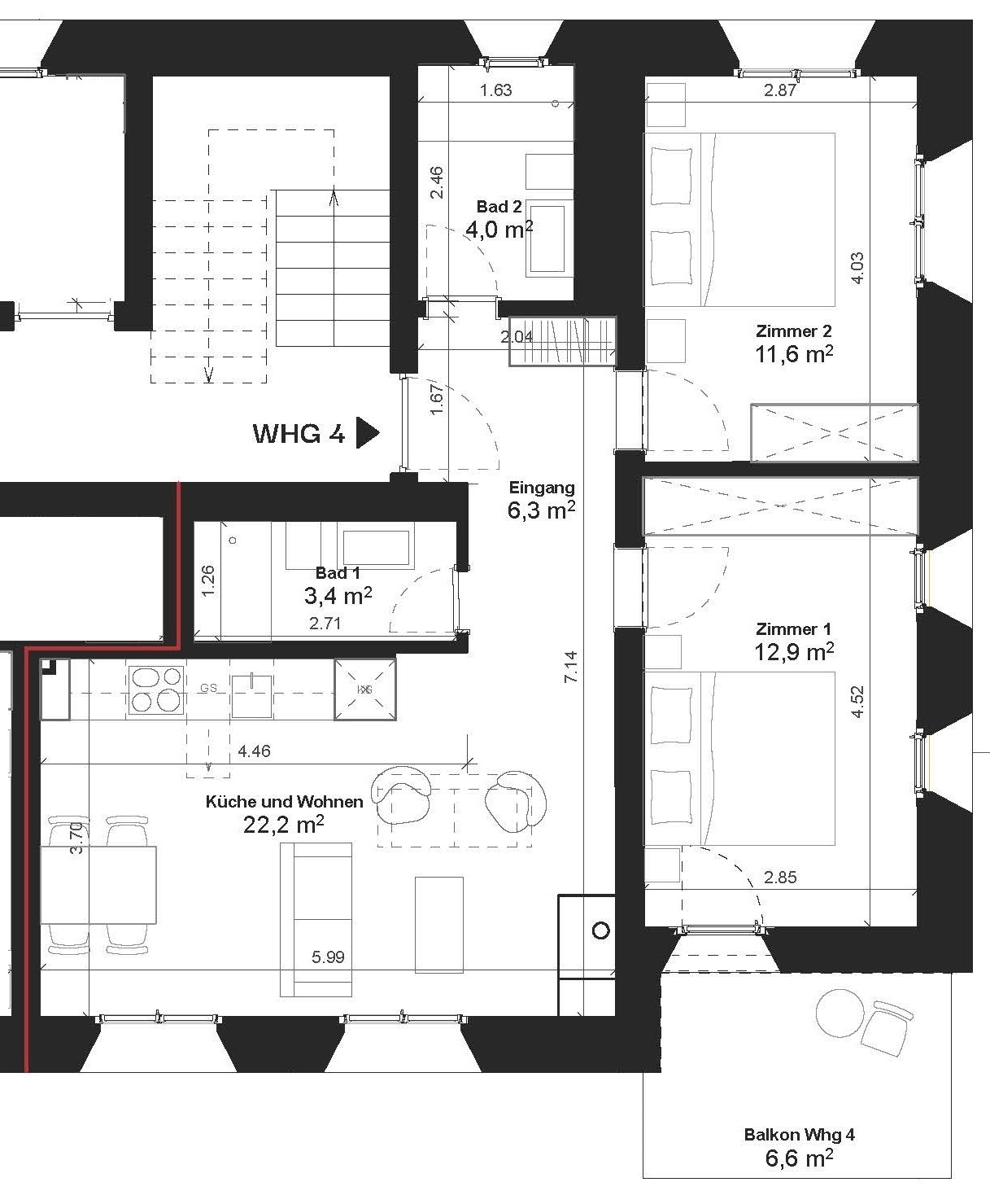
Die 3,5-Zi-Wohnung Nr. 4 mit 81 m2 ist nach Südosten ausgerichtet und profitiert dadurch von vielen Sonnenstunden. Grosszügige Glasfronten fluten die Räume mit natürlichem Tageslicht. Das Zusammenspiel aus Licht, Raum und spektakulärer Aussicht schafft ein einzigartiges Ambiente - ideal, um den Alltag hinter sich zu lassen und zur Ruhe zu kommen.
Hochwertige Ausstattung und exklusives Ambiente
Die Innenausstattung spiegelt höchste Ansprüche an Mate-rial und Verarbeitung wider: Fenster in Altholz, ein rustikaler und robuster 30 cm-breiter Eichenholzboden, Einbauschränke in Altholz-Optik, die moderne Küche mit V-Zug-Geräten, eine stilvolle Badezimmerausstattung mit italienischem Naturstein sowie ein Cheminée und individuelle Gestaltungsmöglichkeiten für die Inneneinrichtung garantieren ein einzigartiges Wohnerlebnis.
Highlights
Es gibt einen kleinen für alle nutzbaren Wellnessbereich mit Sauna, Nasszelle sowie kleinem Ruheraum direkt neben dem Hauseingang.
Ein Personenaufzug verbindet alle Ebenen barrierefrei und sorgt für maximale Bequemlichkeit.
Glasfaser sorgt für schnelles Home-Office.
Nachhaltigkeit und zukunftsweisende Energielösungen
Ein zentrales Anliegen dieses Projekts ist der verantwortungsvolle Umgang mit Ressourcen. Das nachhaltige Energiekonzept kombiniert eine leistungsstarke Wärmepumpe, Erdsonden und eine eigene Photovoltaikanlage. Dies sichert eine effiziente, umweltfreundliche Energieversorgung und ermöglicht komfortables Wohnen mit minimalem ökologischen Fussabdruck. Die mit dem Haus verbundene Tiefgarage bietet zudem sichere Stellplätze mit Elektroladevorbereitung und komfortablen Zugang zu den Wohnungen – auch im Winter ein echtes Plus. Im Veloraum steht gibt es genügend Steckdosen, um Ihre E-Bikes aufzuladen.
Bever ist sehr gut an den öffentlichen Verkehr angeschlossen. Der Bahnhof mit stündlichen Zügen der RhB in beide Richtungen und der Bus-Stopp mit halbstündlichen Busverbindungen sind 5 Minuten Fussweg entfernt.
Das beschauliche und authentische Bever bietet ein modernes Lebensgefühl für Ruhesuchende, welche die kurze Distanz nach St. Moritz mit all seinen Möglichkeiten schätzen.
Wohnen, wo Natur und Privatsphäre zu Hause sind
Erleben Sie ein neues Wohngefühl im Herzen des Engadins – luxuriös, nachhaltig und individuell. Dieses exklusive Mehrfamilienhaus in Bever ist weit mehr als ein nachhaltiges Umbauprojekt: Es ist ein Zuhause für Menschen, die das Besondere suchen, die Verbindung aus Natur und Komfort schätzen und höchste Ansprüche an Qualität und Privatsphäre stellen.
Moderne Tiefgarage
Der Garagenplatz befindet sich in der Tiefgarage. Für Elektromobilität sind entsprechende Vorbereitungen getroffen.
Nebenkosten
Die Nebenkosten für Hauswartung, Heizung, Wasser, Versicherungen und Verwaltung, Möbel, Internet/TV, Kurtaxen sowie Garagenplatz sind im Mietzins inbegriffen.
15
| Objektart | Mehrfamilienhaus |
|---|---|
| Wohnung |
3.5 Zimmer-Wohnung im 1. OG |
| Wohnungsgrösse | 81 m2 |
|
Zustand |
Erstbezug nach Kernsanierung |
| Bezug | 15. Juni 2026 |























